
To search the real estate map for the Eugene area, simply rotate your mobile phone from vertical to horizontal. This will enable the map feature, making it easier to explore available properties.
1068 LEGACY STEugene, OR 97402




Mortgage Calculator
Monthly Payment (Est.)
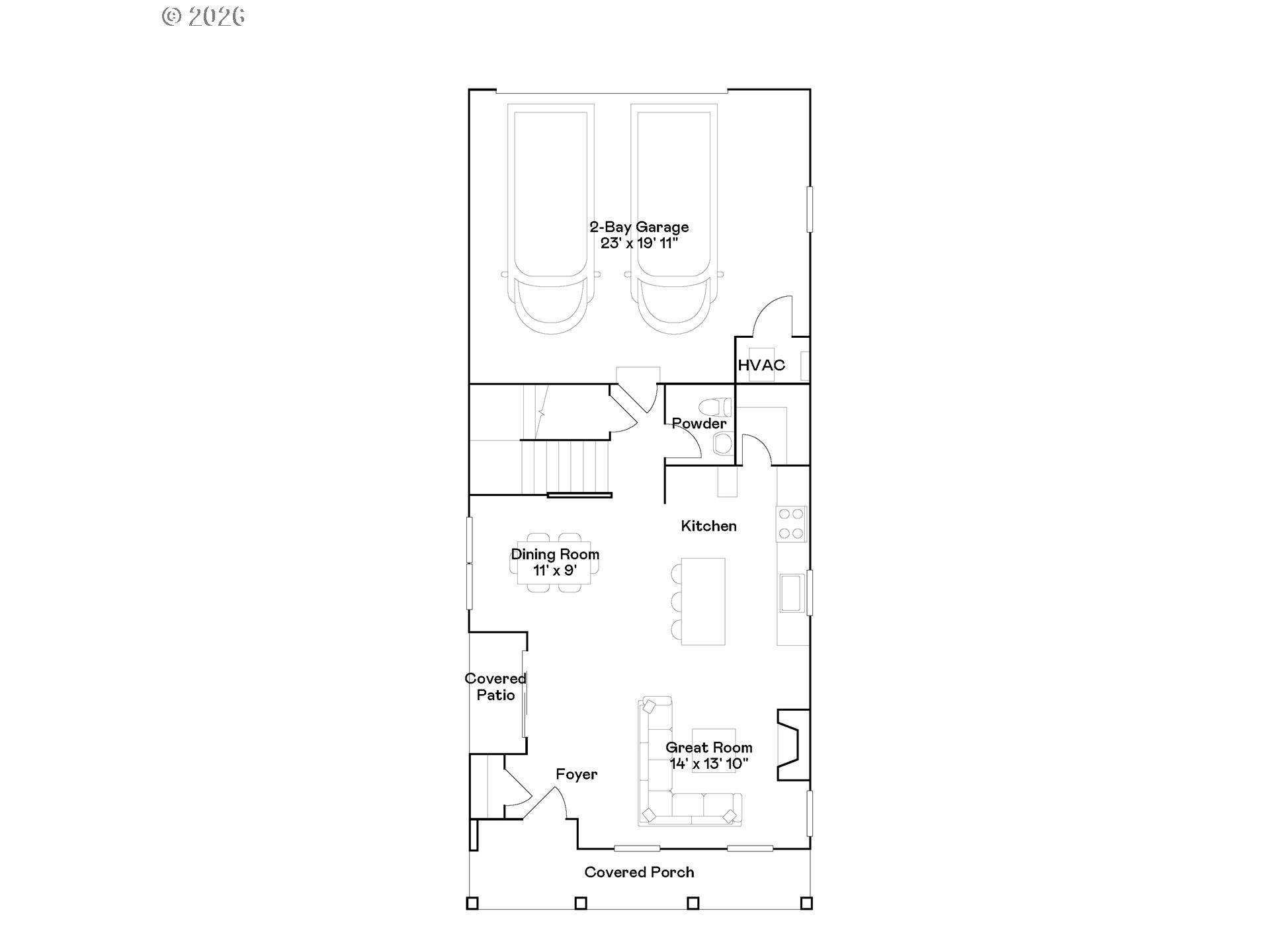
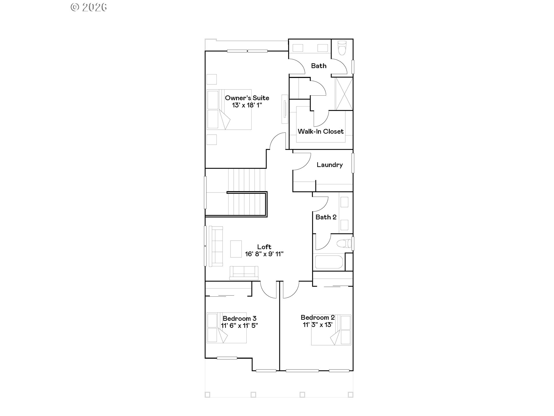
$2,091This new construction home is move-in ready and located in a serene community surrounded by protected wetlands and a short distance to several local parks and trails, with easy access to Fern Ridge Lake, grocery stores, schools, and restaurants. The Calloway plan features an open-concept kitchen, dining area, and fireplace-warmed great room that extends to a covered patio, with a loft and laundry room upstairs along with the bedrooms. Interior highlights include quartz countertops, shaker-style cabinets, LVP flooring in the kitchen and entry, LVT flooring in the baths, two-tone interior paint, fencing, and landscaping with irrigation. This home also includes central air conditioning, a refrigerator, washer and dryer, and blinds—all at no extra cost! Located on homesite 30, this home is move in ready! Photos are of similar model home - features & finishes may vary. Below-market rate incentives available when financing with preferred lender.
| 3 days ago | Listing updated with changes from the MLS® | |
| 3 days ago | Listing first seen on site |
The content relating to real estate for sale on this website comes in part from the IDX program of the RMLS™ of Portland, Oregon. Real estate listings held by brokerage firms other than Lennar Sales Corp are marked with the RMLS™ logo, and detailed information about these properties includes the names of the listing brokers. Listing content is Copyright © 2026 RMLS™, Portland, Oregon. Some properties which appear for sale on this website may subsequently have sold or may no longer be available.
Last checked 2026-03-30 01:41 AM PDT.
All information provided is deemed reliable but is not guaranteed and should be independently verified

